TAGLIAVINI VENDE CASA - Bº CABILDO - REPUBLICA DE LIBANO Nº 2.371

Santiago Del Estero, Santiago del Estero, República del Líbano 2371, G4200 Santiago del Estero
Código de aviso: 1184557
Ubicación de la propiedad
Venta
Consultar
Tagliavini Daniel

Comunicate con el anunciante:

Al enviar el mensaje acepto los Términos y condiciones
 

• El anunciante no desea recibir mensajes.

• Debe habilitar el sistema de mensajería, En la sección de "Mi cuenta".

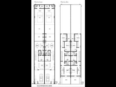
Planta Baja:

*Garage cubierto;

*Living/Sala de estar con conexión a patio interno de luz;

*Baño de cortesía: en sector de cocina comedor (Posee inodoro con mochila y mesada de granito natural, bacha marca Johnson de acero inoxidable y grifería marca Fv);

*Cocina comedor integrado con isla (Posee mueble de guardado). Cuenta con mesada de granito natural con bacha marca Johnson de acero inoxidable, grifería mono comando marca Fv, mueble de alacena y bajo mesada de melamina;

*Lavadero;

*Galería con asador y bacha de lavado;

*Patio trasero parquizado con pileta de material;

*Deposito (En zona de pileta para guardado de objetos) y baño (Posee inodoro con mochila y mesada de granito natural, bacha marca Johnson de acero inoxidable y grifería marca Fv).



Planta Alta:

*3 Dormitorios 2 dormitorios en sector contrafrente (Ambos con placard y 1 de ellos con patio terraza). 1 dormitorio al frente con sector de vestidor con módulos pantaloneros, baño completo en suite y balcón terraza.

  • 3 Habitaciones
  • 4 Baños
  • Cochera
  • Jardín
  • Balcon
  • Living
  • Cocina comedor
  • Internet
  • Muebles de cocina
  • Gas natural
  • Parrilla
  • Television por cable
  • Pileta
  • Teléfono
  • Cloacas
  • Agua corriente
  • Pavimento
Inmobiliarias
vender ¡Quiero vender mi producto! Puedes vender gratis y en pocos pasos PUBLICAR AQUÍ UN ANUNCIO GRATIS
planes Planes para empresas Publicá todos tus avisos con un plan especial CONTACTO COMERCIAL
ayuda ¿Necesitás ayuda o asesoramiento? INGRESÁ A PREGUNTAS FRECUENTES